Hudson River Valley House

Milan, New York

Practice Self

Role Designer

Duties

  • All architectural and interior design services

Project Description

A private residence composed of a complex of individual structures set on a 59-acre site.

  • 3,000 SF main house with indoor spa

  • 2,500 SF structure with garage, caretaker apartment, and gym

  • 2,000 SF guest/pool house with swimming pool

  • Two 1,000 SF recreation structures & tennis court.

Photography by Aislinn Weidele

 
 
HRVH_Concept_Images.jpg

In reverence to the Hudson River Valley’s lithic character, the history of its creation & views to it

CONCEPT & SITE

HRVH_Site01.jpg

Located on site characterized by a series of narrow paths that open onto expansive views of mountains. Under a thin layer of topsoil the building site is largely made up of shale. Our concept was derived from these qualities of the site.

Designed as a collection of structures they are connected by narrow paths, and the structures are both designed to embrace the rocky site, and located in order to frame views on the exterior, while on the interior the structure is designed to capture a series of mountain views on both its northwest and southeast faces.

SITE PLAN: ENTIRE PROPERTY

SITE PLAN: PRIMARY STRUCTURES

A series of individual structures and water elements located across the site’s 60 acres are connected by a series of trails.

The site is characterized by narrow paths that open up to expansive views of the mountains beyond.  The building is located at the site’s highest point with a narrow pathway leading up to it.  At the end of this pathway, an opening in the trees affo…

The site is characterized by narrow paths that open up to expansive views of the mountains beyond. The building is located at the site’s highest point with a narrow pathway leading up to it. At the end of this pathway, an opening in the trees affords views to the mountains beyond to both the northwest and southeast. The building occupies the opening and mimics the geometry of the mountains beyond conceptually completing its profile. Its horseshoe-shaped plan embraces the rocky earth, and internally frames the extensive mountain views.

Via a wooded uphill path one arrives at an opening at the top of a hill flanked by its two main structures which frame views to the mountains beyond.

The roof profiles are inspired by the geometry of the surrounding mountains.

 

ARCHITECTURE

 
 
 

MAIN HOUSE

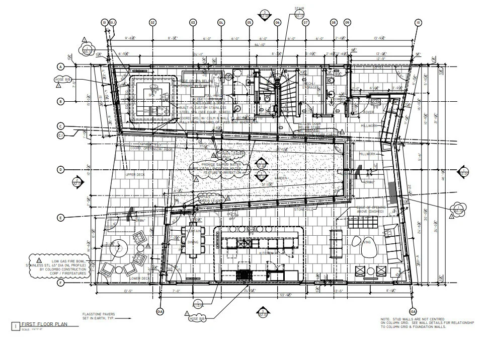
GROUND FLOOR PLAN

MAIN HOUSE

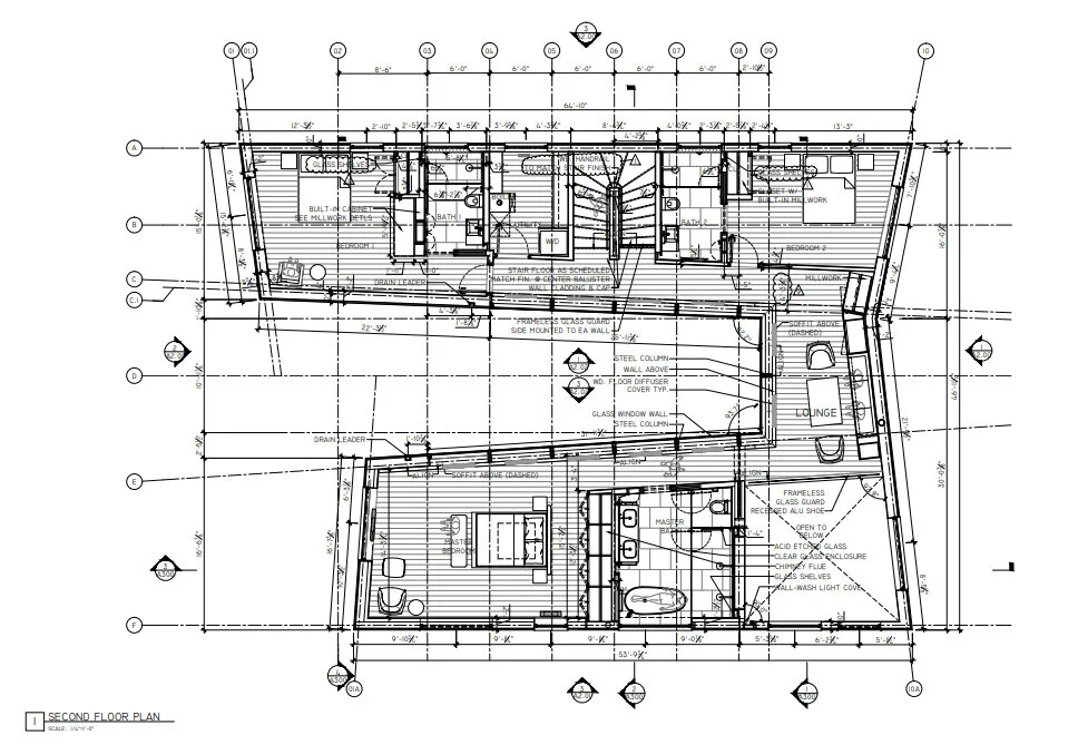
2ND FLOOR PLAN

MAIN HOUSE

ROOF PLAN

 
 
Photo_MainHouse_Rear.jpg
 
 
HRV_Drawing_Detail_Siding01.jpg
F

FACADE

Underscoing the passae of time, the angled siding casts shadows that accentuate the varying location of the sun throughout the day and year.

Underscoing the passae of time, the angled siding casts shadows that accentuate the varying location of the sun throughout the day and year.

 
 

COURTYARD GARDEN

 
Inspired by the Inca’s embrace of existing stones exemplified in the design of the Temple of the Sun in Machu Picchu, the horseshoe shape of the house creates an internal landscaped garden.

Inspired by the Inca’s embrace of existing stones exemplified in the design of the Temple of the Sun in Machu Picchu, the horseshoe shape of the house creates an internal landscaped garden.

DSC_9331.jpg
 
DSC_0175.jpg
 
 

SWIMMING POOL AREA

POOL/GUEST HOUSE & SWIMMING POOL

FLOOR PLAN

Located away from the house, the pool/guest house provides a separate zone for leisure.

 
 
 
The tiling of the swimming pool was designed to enhance the sound of splashing water as water poured over the pool’s edges.

tiling was designed to enhance the sound of splashing water as water poured over the pool’s edges.

The 360° infinity-edge pool reflects the surrounding landscape.

The 360° infinity-edge pool reflects the surrounding landscape.

 

INTERIORS

DSC_8222.jpg
 

MAIN HOUSE

FURNITURE PLAN: GROUND FLOOR

 

MAIN HOUSE

FURNITURE PLAN: 2ND FLOOR

 
 
 
 

The courtyard sits at the center of the house surrounded by a wall of glass. Heating & cooling is delivered though custom water-jet cut stone vents that match seamlessly with the floor stone.

The kitchen counter if of the same stone as the surrounding floor.

 
 

Split stone lines the spa while lift-slide corner doors provide connection & access to the outdoors.

 
 
 

Connected to the rocky site, the ground floor is finished in locally-quarried honed bluestone.

The ground floor’s dark stone gives way to the lighter flooring of the floor above. Light stained ash echoes the materials of trees surrounding the house.

 
 
 

2nd Floor study overlooking the garden and living room below.

 
 
 
 

 

Next
Next

OPPORTUNITY AGENDA OFFICES